Haus zum Verlieben
Video-Rundgang
Traumhaftes, lichtdurchflutetes Haus
mit Fernblick, Naturteich und zweitem Baugrundstück
In absolut idyllischer und ruhiger Lage von Sallneck (Kleines Wiesental) erwartet Sie dieses lichtdurchflutete Einfamilienhaus mit spektakulärem Panoramablick auf Berge und Täler – ideal für Menschen mit Sinn für das Außergewöhnliche, Naturliebhaber, Kreative oder als Ferienimmobilie.
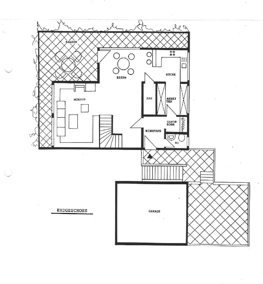
Das Haus bietet 3 großzügige Wohnebenen in teils offenem Loftstil. Im Erdgeschoss befinden sich der sehr große Wohn-Ess-Küchenbereich, Gäste-WC sowie der Zugang zur grosszügigen Terrasse, dem unteren Stockwerk zum Wintergarten und in den Gartenbereich. Eine elegante Treppe führt auf die Galerie mit Schlafzimmer und dem Hauptbad (mit Fenstern, Wanne & Dusche). Zusätzlich befindet sich ein weiterer Eingang im unteren Wohnbereich, in dem sich ein weiteres Zimmer mit Bad (Wanne) befindet sowie ein kleiner (Wein)keller, die Waschküche, der grosszügige, beheizbare Wintergarten und der Saunabereich mit kleiner Küchenzeile.
Besonderes Highlight:
Auf dem weitläufigen Grundstück befindet sich ein großer Naturteich, der auch zum Baden genutzt werden kann.
Das Anwesen umfasst zwei Grundstücke, wobei das zweite ein weiteres Baufenster (bereits mit eigener Hausnummer) für ein zusätzliches Einfamilienhaus bietet
4 Zimmer
2 Badezimmer und 1 Gäste-WC
Wohnbereich: 147 m²
Sonstige Nebenräume: 78 m²
Wintergarten: 32 m²
Gesamtgrundstück (1.487 m²) bestehend aus zwei Flurstücken:
Hausgrundstück (833 m²) und Baugrundstück (654 m²).
Ein Verkauf der Grundstücke ist sowohl gemeinsam
als auch getrennt möglich.
Baujahr 1981
In Teilen renovierungsbedürftig
Ausstattung im Überblick:
Bezugsfertig – sofort
Ruhige Traumlage mit Fernblick (bei gutem Bedingungen mit Alpenblick)
3 Etagen, Galerie, offener Grundriss
Grosser Balkon im EG
Balkon im OG
EG mit Bodenheizung
Bad mit Wanne, Dusche & Fenster
Gäste-WC
Untergeschoss mit Wohnraum und WC mit Wanne, Keller, Waschraum
Saunabereich
Wintergarten (beheizbar, Markise),
Große Terrasse (unterm Kirschbaum)
Kleine Terrasse
Solaranlage (Warmwasser)
Ölheizung
Grosser Garten (mit Walnussbaum) und Naturteich
Berg- & Fernblick
Große Doppelgarage mit elektrischem Doppeltor + zusätzliche Stellplätze
Geräteschuppen
Bodenbeläge: Fliesen, Naturstein
Holzfenster
Glasfaseranschluss
Als Ferienhaus geeignet
Entfernungen:
Nur 15 Min. nach Schopfheim, ca. 25 Min. nach Lörrach,
ca. 35 Minuten nach Basel
Kurzum: Wohnkomfort, Natur und Entwicklungspotenzial in einer der schönsten Lagen des Kleinen Wiesentals!
Preis: 559.000 Euro VB
Kontakt:
carla.fauser@t-online.de
+49 761 488 989 95
Bildergalerie:























































































